Trilocale in vendita

Novi Ligure, Via Ugo la Malfa
€ 111.000
Prezzo aggiornato
3 locali 3 locali
92 Mq 92 Mq
2 bagni 2 bagni

Trilocale in vendita

Novi Ligure, Via Ugo la Malfa

Descrizione annuncio

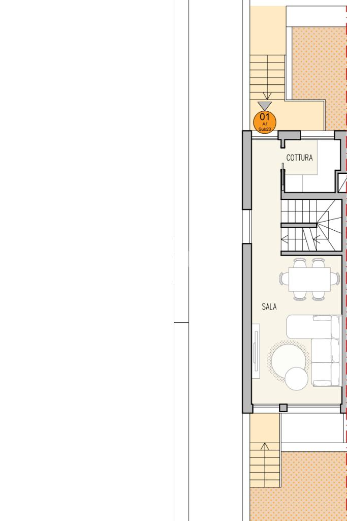
All’interno di un complesso residenziale composto da 13 unità abitative, edificato nel 2006 e attualmente in fase di ultimazione, è disponibile e un appartamento, caratterizzato da una distribuzione funzionale degli spazi e da finiture moderne. L’immobile proposto è il primo di sette appartamenti tra loro simili per superficie e disposizione interna.

Il piano terra ospita una zona giorno ben organizzata, composta da un cucinotto con cucina di qualità italiana su misura e completamente attrezzata, e da un luminoso soggiorno che, grazie alle ampie finestre, si apre sul giardino di proprietà esclusiva.

Una scala in legno conduce al piano primo, dove vi è una camera matrimoniale con cabina armadio, oltre un bagno finestrato completo di box doccia.

Al piano seminterrato si sviluppa un ampio locale multifunzionale, ideale come taverna o spazio relax, servito da un secondo bagno.

L’appartamento si presenta in ottimo stato, con arredi moderni, bagni completi e serramenti con doppi vetri in pvc di qualità.

Inoltre è presente all'interno dell'immobile, la predisposizione per aria condizionata e impianto antifurto.

La classe energetica dell’immobile è C, a garanzia di un buon livello di efficienza energetica, con caldaia a condensazione di ultima generazione.

Una volta completati i lavori del complesso, le spese condominiali previste saranno contenute.

Assieme all'abitazione è incluso a parte un box auto al piano seminterrato, oltre ad un posto auto al piano strada.

Il prezzo dell’appartamento oggetto dell’inserzione è di €111.000,00.

Per maggiori informazioni, non esitate a contattarci.

Mostra tutto

Nelle vicinanze

Trasporto pubblico Trasporto pubblico
Novi Ligure
Novi Ligure
1,3 Km
Trasporto pubblico
190 m
Ricariche auto elettriche Ricariche auto elettriche
Be Charge Novi Center
350 m
EnelX EVA+ Novi Ligure
560 m
U2 Supermercato Basaluzzo | EnelX
2,8 Km
Scuole Scuole
Istituto Comprensivo 2
570 m
Vecchia Scuola Elementare "Martiri della Benedicta"
680 m
Scuole Pubbliche - Elementari - Scuola Elementare G.Rodari
1,4 Km
Scuole
2,1 Km
Scuola paritaria Kid School
2,3 Km
Farmacia Farmacia
Parafarmacia E' Qui
250 m
Farmacia associata F.A.P.
580 m
Farmacia Dottor Beccaria
1,1 Km
Farmacia Bajardi
1,2 Km
Farmacia Giara
1,3 Km
Ospedali Ospedali
Ospedale San Giacomo
1,8 Km
Supermercati Supermercati
Penny Market
260 m
Bennet
340 m
Dico
1,0 Km
Lidl
1,0 Km
Gulliver
1,1 Km
Negozi Negozi
Il forno del borgo
870 m
Negozi
1,1 Km
Bar Bar
Caffetteria GiorgioLombardi
1,1 Km
Bar
1,2 Km
Pub Birreria Bar Alba
1,2 Km
Bar Caffetteria Antica Novi
1,5 Km
I Monelli
1,6 Km
Ristoranti Ristoranti
Trattoria dell'Angelo
790 m
Pizzeria Ristorante La Scogliera
870 m
Trattoria All'Oca Giuliva
990 m
Il Banco
1,2 Km
Bar Pizzeria Ristorante Bella Napoli
1,2 Km
Mostra tutto

Caratteristiche

Rif.:
61119328
Piano:
2 di 2 (Piano su più livelli)
Balconi:
1
Camere da letto:
1
Arredamento:
Parziale
Condizionamento:
Predisposizione impianto
Mostra tutto
Prezzo Prezzo
€ 111.000
Prezzo box Prezzo box
€ 12.000
Rata mutuo Rata mutuo
€ 523 / mese
Spese annue Spese annue
€ 600
Proponi il tuo prezzoProponi il tuo prezzo

Altre caratteristiche

Classe Energetica

C
C
C
C
C
C
C
C
C
EP globale non rinnovabile:
154.57 kW h/m² anno
EP globale rinnovabile:
26.00 kW h/m² anno
EP invernale del fabbricato:
EP estiva del fabbricato:
Anno di costruzione:
2007
Riscaldamento:
Autonomo
Tipo impianto:
A radiatori
Tipo alimentazione:
Metano

Prezzo ridotto di €1 (9%%)

Ti interessa visionare l'immobile?

Fissa un appuntamento  Fissa un appuntamento

Richiedi informazioni

Clicca su Leggi per aprire l'informativa
* Questi campi sono obbligatori

Calcola il tuo mutuo

Semplice e senza impegno
Anticipo

( % )
Mutuo

( % )

pochi semplici passi

inserisci i tuoi dati
Questionario completato
Grazie per aver richiesto un appuntamento senza impegno con un nostro Consulente del Credito e Assicurativo.

Hai inserito correttamente tutti i dati necessari e a breve riceverai una e-mail con un link da convalidare per inviare i tuoi dati.
Affiliato
Studio Novi Uno Sas
Corso R. Marenco, 20 15067 Novi Ligure (AL)

Il nostro staff


  • Salvatore Guidotti
    Affiliato

  • Matteo Iacono
    Responsabile
Corso R. Marenco, 20 15067 Novi Ligure (AL)
Zona: Novi Ligure
Mostra su mappa
Orari: Dal lunedì al venerdì dalle ore 09:00 alle 13:00 e dalle ore 15:00 alle 20:30. Il sabato dalle ore 9:00 alle 13:00 e dalle ore 15:00 alle 19:00.
Affiliato
Studio Novi Uno Sas
Corso R. Marenco, 20 15067 Novi Ligure (AL)

2026 Tecnocasa Franchising S.p.A. - P. IVA 08365160152 - Via Monte Bianco 60/A 20089 Rozzano (MI). Ogni agenzia ha un proprio titolare ed è autonoma. Privacy policy | Policy utilizzo | Cookie policy