Quadrilocale in vendita

Novi Ligure, Via Paolo Giacometti - Centro
€ 157.000
Prezzo aggiornato
4 locali 4 locali
124 Mq 124 Mq
2 bagni 2 bagni

Quadrilocale in vendita

Novi Ligure, Via Paolo Giacometti - Centro

Descrizione annuncio

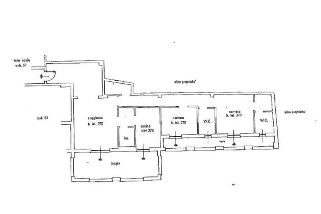
Nel pieno centro storico di Novi Ligure, all’interno di una palazzina dotata di ascensore, si propone un immobile che unisce comodità, funzionalità e una posizione di assoluto pregio. L’appartamento si presenta in buone condizioni interne, caratterizzato da materiali di qualità come i pavimenti in marmo, i serramenti in legno con vetrocamera e un sistema di termoconvettori che garantisce il riscaldamento e il raffrescamento degli ambienti durante tutto l’anno.

La zona giorno accoglie con un ingresso armonioso che conduce al salotto, uno spazio luminoso e piacevole, valorizzato dall’accesso diretto tramite porta finestra a un ampio terrazzo coperto. Quest’ultimo rappresenta un ambiente ideale per trascorrere momenti di relax o convivialità con amici e familiari, godendo della tranquillità del contesto.

La cucina risulta separata, garantendo una chiara distinzione tra gli spazi dedicati alla vita quotidiana.

Attraverso un comodo corridoio si raggiunge la zona notte, composta da una cameretta con affaccio su un secondo balcone e da una camera da letto matrimoniale, dotata di cabina armadi e bagno privato, pensata per offrire comfort e riservatezza.

Completano la proprietà una cantina, facilmente raggiungibile tramite ascensore, e un posto auto scoperto situato all’interno del cortile condominiale, elemento particolarmente apprezzabile in una soluzione nel cuore del centro storico. Una proposta ideale per chi desidera vivere in una posizione centrale senza rinunciare a spazi esterni e praticità.

Mostra tutto

Nelle vicinanze

Trasporto pubblico Trasporto pubblico
Novi Ligure
Novi Ligure
290 m
Trasporto pubblico
220 m
Ricariche auto elettriche Ricariche auto elettriche
EnelX EVA+ Novi Ligure
850 m
Be Charge Novi Center
1,3 Km
Scuole Scuole
Vecchia Scuola Elementare "Martiri della Benedicta"
650 m
Istituto Comprensivo 2
750 m
Scuola paritaria Kid School
1,1 Km
Scuola Media Statale G. Boccardo
1,2 Km
Scuole Pubbliche - Elementari - Scuola Elementare G.Rodari
1,3 Km
Farmacia Farmacia
Farmacia Bajardi
100 m
Farmacia Giara
110 m
Parafarmacia Dottor Spina
260 m
Farmacia Dottor Beccaria
330 m
Farmacia Valletta
460 m
Ospedali Ospedali
Ospedale San Giacomo
520 m
Supermercati Supermercati
Gulliver
370 m
Dico
390 m
Lidl
550 m
Supermercato U2
1,0 Km
Penny Market
1,1 Km
Negozi Negozi
Negozi
310 m
Il forno del borgo
530 m
Bar Bar
Bar Caffetteria Antica Novi
140 m
Bar
190 m
Caffetteria GiorgioLombardi
300 m
Bar Lasagna
320 m
Bar Luna
690 m
Ristoranti Ristoranti
Pizzeria Ristorante La Tavernetta
100 m
Trattoria Giulia
150 m
Osteria pizzeria Cavour
160 m
Il Banco
250 m
Ristorante Corona
270 m
Mostra tutto

Caratteristiche

Rif.:
61153955
Piano:
3 di 4 con ascensore (Piano medio)
Posti auto:
1
Balconi:
1
Terrazzi:
1
Camere da letto:
2
Mostra tutto
Prezzo Prezzo
€ 157.000
Rata mutuo Rata mutuo
€ 740 / mese
Spese annue Spese annue
€ 2.500
Proponi il tuo prezzoProponi il tuo prezzo

Classe Energetica

C
C
C
C
C
C
C
C
C
EP globale non rinnovabile:
62.47 kW h/m² anno
EP globale rinnovabile:
2.40 kW h/m² anno
EP invernale del fabbricato:
EP estiva del fabbricato:
Anno di costruzione:
2002
Riscaldamento:
Centralizzato
Tipo impianto:
Ad aria
Tipo alimentazione:
Metano

Prezzo ridotto di €1 (3%%)

Ti interessa visionare l'immobile?

Fissa un appuntamento  Fissa un appuntamento

Richiedi informazioni

Clicca su Leggi per aprire l'informativa
* Questi campi sono obbligatori

Calcola il tuo mutuo

Semplice e senza impegno
Anticipo

( % )
Mutuo

( % )

pochi semplici passi

inserisci i tuoi dati
Questionario completato
Grazie per aver richiesto un appuntamento senza impegno con un nostro Consulente del Credito e Assicurativo.

Hai inserito correttamente tutti i dati necessari e a breve riceverai una e-mail con un link da convalidare per inviare i tuoi dati.
Affiliato
Studio Novi Uno Sas
Corso R. Marenco, 20 15067 Novi Ligure (AL)

Il nostro staff


  • Salvatore Guidotti
    Affiliato

  • Matteo Iacono
    Responsabile
Corso R. Marenco, 20 15067 Novi Ligure (AL)
Zona: Novi Ligure
Mostra su mappa
Orari: Dal lunedì al venerdì dalle ore 09:00 alle 13:00 e dalle ore 15:00 alle 20:30. Il sabato dalle ore 9:00 alle 13:00 e dalle ore 15:00 alle 19:00.
Affiliato
Studio Novi Uno Sas
Corso R. Marenco, 20 15067 Novi Ligure (AL)

2026 Tecnocasa Franchising S.p.A. - P. IVA 08365160152 - Via Monte Bianco 60/A 20089 Rozzano (MI). Ogni agenzia ha un proprio titolare ed è autonoma. Privacy policy | Policy utilizzo | Cookie policy