Casa indipendente in vendita

Rocca Grimalda, Località cicala
€ 180.000
Prezzo aggiornato
8 locali 8 locali
440 Mq 440 Mq
4 bagni 4 bagni

Casa indipendente in vendita

Rocca Grimalda, Località cicala

Descrizione annuncio

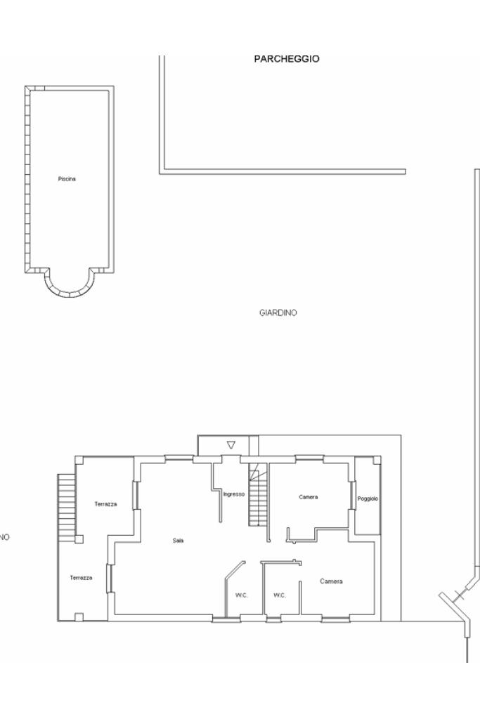
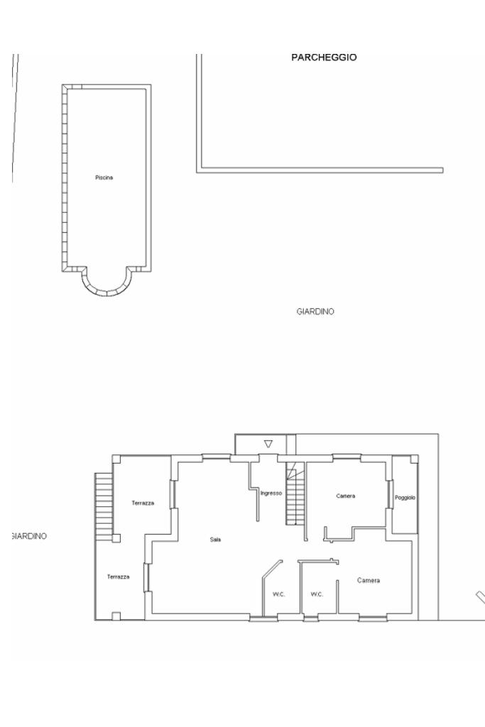
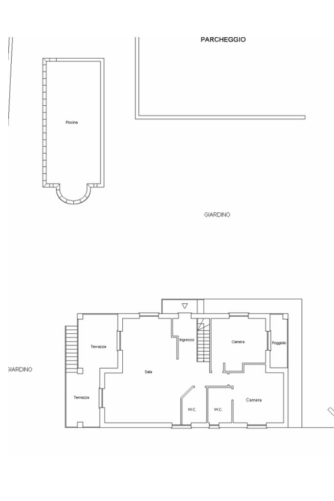
In vendita le mura di una splendida proprietà attualmente sede di un’attività di ristorazione e pizzeria ben avviata, immersa nel verde e nella tranquillità, con ampia metratura interna ed esterna. Una soluzione versatile, perfetta sia per chi desidera proseguire nel settore della ristorazione, sia per chi cerca un immobile da trasformare in un Bed & Breakfast o in una residenza privata di charme.

La proprietà si sviluppa su un ampio lotto di circa 4.200 mq, con spazi esterni generosi e ben curati, ideali per accogliere ospiti o vivere momenti di relax all’aperto.

Gli interni, attualmente adibiti a ristorante, si contraddistinguono per lo stile rustico e accogliente, con pavimenti in cotto e mattoni a vista che conferiscono calore e autenticità all’ambiente.

Presente anche un ampio dehor interno, perfetto per creare un angolo riservato, conviviale o dedicato al relax.

La struttura offre inoltre interessanti possibilità di ampliamento: sopra il garage si trova una zona attualmente non accessibile, ma che può essere trasformata in ulteriori stanze o ambienti da personalizzare secondo le proprie esigenze.

Una proposta unica nel suo genere, che unisce potenzialità commerciali e versatilità abitativa, ideale per chi sogna di vivere e lavorare in un contesto tranquillo e immerso nella natura, ma con tutte le comodità a portata di mano.

Mostra tutto

Nelle vicinanze

Trasporto pubblico Trasporto pubblico
Trasporto pubblico
110 m
San Giacomo
San Giacomo
100 m
Roccagrimalda
Roccagrimalda
1,4 Km
Farmacia Farmacia
Pareto Gabriella
910 m
Supermercati Supermercati
Basko
2,1 Km
Ristoranti Ristoranti
Il diavolo sulle colline
2,1 Km
Ristorante Pizzeria Bar Ai Prati
2,2 Km
Mostra tutto

Caratteristiche

Rif.:
61101649
Piano:
2 di 2 (Piano su più livelli)
Box:
1
Balconi:
1
Camere da letto:
3
Arredamento:
Assente
Mostra tutto
Prezzo Prezzo
€ 180.000
Rata mutuo Rata mutuo
€ 830 / mese
Spese annue Spese annue
€ 0
Proponi il tuo prezzoProponi il tuo prezzo

Classe Energetica

D
D
D
D
D
D
D
D
D
EP globale non rinnovabile:
346.09 kW h/m² anno
EP globale rinnovabile:
15.59 kW h/m² anno
EP invernale del fabbricato:
EP estiva del fabbricato:
Anno di costruzione:
1967
Riscaldamento:
Autonomo
Tipo impianto:
A radiatori
Tipo alimentazione:
Metano

Prezzo ridotto di €1 (19%%)

Ti interessa visionare l'immobile?

Fissa un appuntamento  Fissa un appuntamento

Richiedi informazioni

* Questi campi sono obbligatori

Calcola il tuo mutuo

Semplice e senza impegno
Anticipo

( % )
Mutuo

( % )

pochi semplici passi

inserisci i tuoi dati
Questionario completato
Grazie per aver richiesto un appuntamento senza impegno con un nostro Consulente del Credito e Assicurativo.

Hai inserito correttamente tutti i dati necessari e a breve riceverai una e-mail con un link da convalidare per inviare i tuoi dati.
Affiliato
Studio Novi Uno Sas
Corso R. Marenco, 20 15067 Novi Ligure (AL)

Il nostro staff


  • Salvatore Guidotti
    Affiliato

  • Matteo Iacono
    Responsabile
Corso R. Marenco, 20 15067 Novi Ligure (AL)
Zona: Novi Ligure
Mostra su mappa
Orari: Dal lunedì al venerdì dalle ore 09:00 alle 13:00 e dalle ore 15:00 alle 20:30. Il sabato dalle ore 9:00 alle 13:00 e dalle ore 15:00 alle 19:00.
Affiliato
Studio Novi Uno Sas
Corso R. Marenco, 20 15067 Novi Ligure (AL)

2025 Tecnocasa Franchising S.p.A. - P. IVA 08365160152 - Via Monte Bianco 60/A 20089 Rozzano (MI). Ogni agenzia ha un proprio titolare ed è autonoma. Privacy policy | Policy utilizzo | Cookie policy